Nowoczesny dom 165 m2 w centrum Tarnowskich Gór
Tarnowskie Góry Pokaż na mapie ›
Dodane: Piątek, 21 Listopad, 2025 13:11
1 099 000 zł
6661 zł/m2
Szczegóły ogłoszenia
- Kategoria: Domy / Sprzedaż
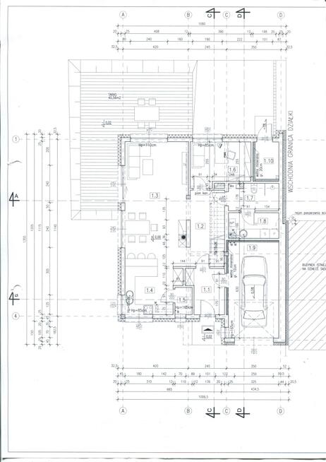
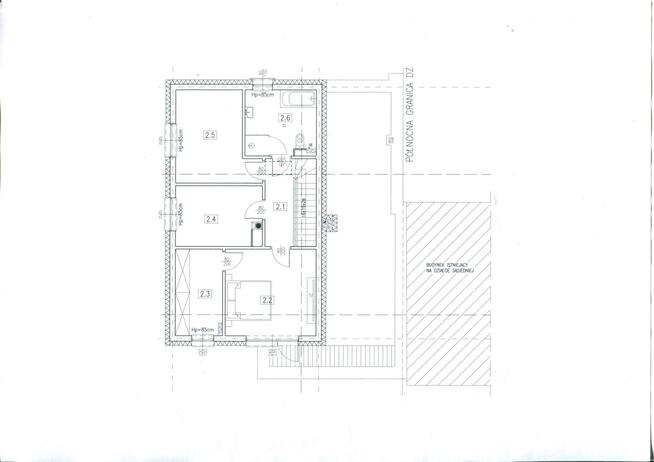
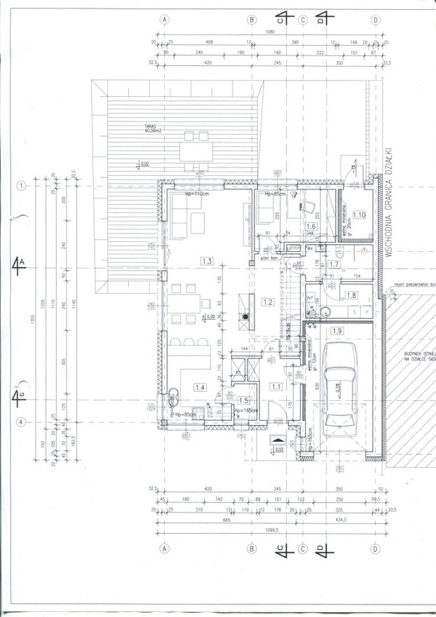
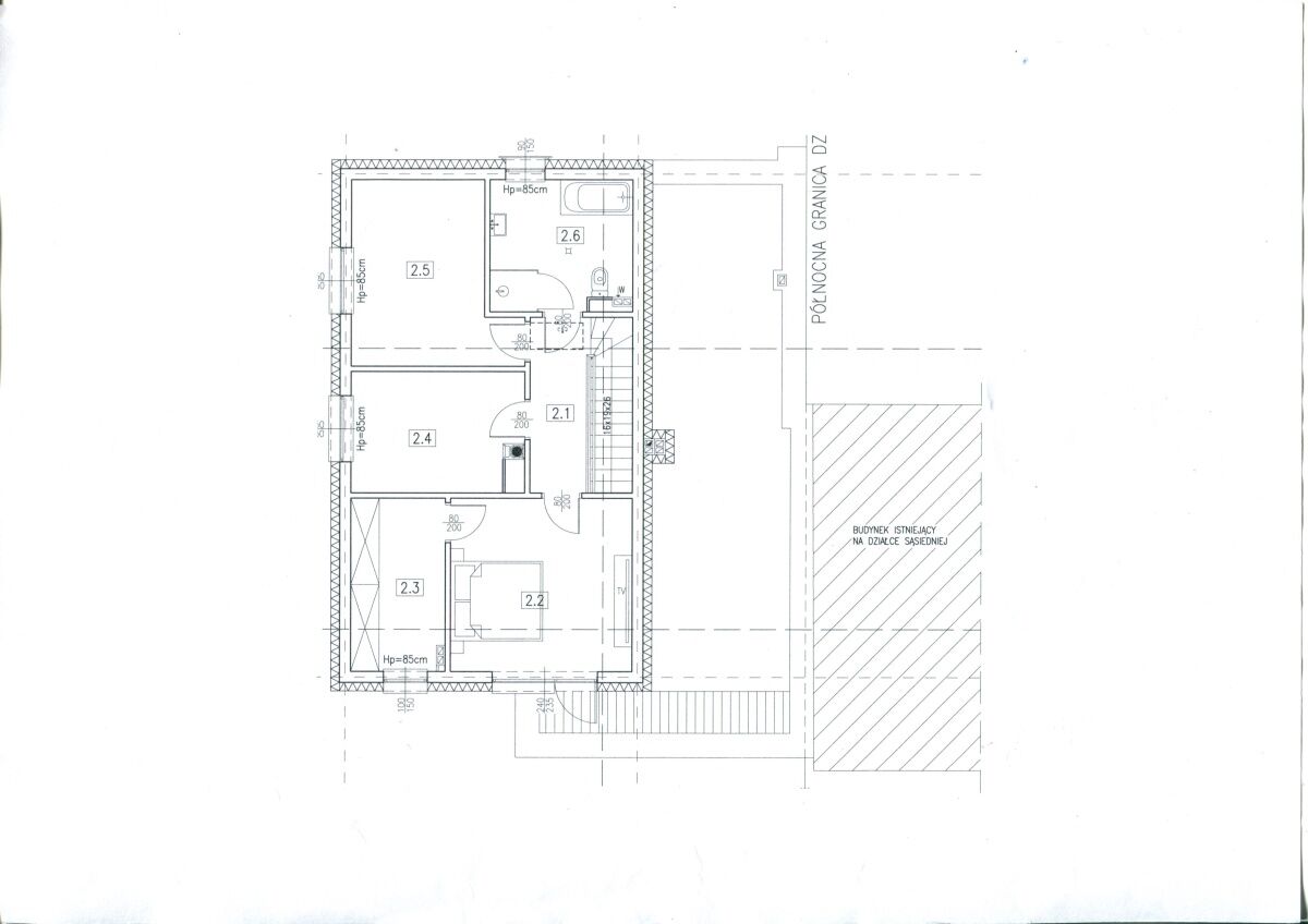
- Powierzchnia:165 m2
- Liczba pokoi:5 i więcej pokoi
- Rynek:Pierwotny
- Rok budowy:2024
- Sprzedaż:Pośrednik
- Cena: 1 099 000 zł / 6661 zł/m2
Opis oferty
Oferta dodana za pomocą Multiportalu BeBrokerNa sprzedaż – nowoczesny dom w spokojnej okolicy Tarnowskich Gór
Adres: ul. Kolejarzy, Tarnowskie Góry - Centrum
Cena: 1 150 000 PLN (brutto)
Powierzchnia domu: 165 m²
Powierzchnia działki: 480 m²
Cena za m²: 6 969,70 zł
Liczba pokoi: 5
Rynek: pierwotny
Certyfikat energetyczny: A
Nowoczesny, energooszczędny dom jednorodzinny o powierzchni 165 m², położony w cichej i spokojnej dzielnicy Tarnowskich Gór, przy ul. Kolejarzy. Budynek znajduje się na działce o powierzchni 480 m² i został wykonany z dbałością o jakość oraz komfort przyszłych mieszkańców.
Dom sprzedawany jest w stanie do wykończenia, co daje nowemu właścicielowi możliwość aranżacji wnętrz według własnych potrzeb i gustu.
Najważniejsze atuty nieruchomości:
- okna trzyszybowe, zapewniające doskonałą izolację termiczną i akustyczną,
- rolety antywłamaniowe,
- pompa ciepła – niskie koszty eksploatacji,
- ogrzewanie podłogowe w całym budynku,
- wykonane instalacje: CO, wodno-kanalizacyjna i elektryczna,
- wylewki, tynki oraz zabudowy z płyt gipsowych,
- wysoka klasa energetyczna A.
Układ pomieszczeń pozwala na wygodne życie zarówno dla rodziny z dziećmi, jak i osób szukających większej przestrzeni. Pięć przestronnych pokoi stwarza wiele możliwości aranżacyjnych.
Lokalizacja zapewnia ciszę i spokój, a jednocześnie wygodny dostęp do centrum miasta, szkół, sklepów i komunikacji.
Cena: 1 099 000 PLN – zakup bezpośrednio od właściciela, bez dodatkowych prowizji.
Więcej zdjęć i przykłady wizualizacji pod adresem photos.app.goo.gl/D3cvGqnNjimLLCfU7
Telefon: 501 - pokaż numer telefonu -
Powiadom o podobnych ogłoszeniach
Lokalizacja: Tarnowskie Góry
Kategoria: Nieruchomości » Domy » Sprzedaż
Cena: od 934000 zł do 1264000 zł Powierzchnia : od 140 m2 do 190 m2
Chcę otrzymywać powiadomienia o nowych ofertach
- Wypromuj ogłoszenie
- Zgłoś naruszenie
- Drukuj ulotkę
- Edytuj/usuń ogłoszenie
- Udostępnij ogłoszenie
- Dodaj na Facebook
































